Zurück

  • 1. Preis Wettbewerb Wohngut Scheldehausen
  • 1. Preis Wettbewerb Wohngut Scheldehausen
  • 1. Preis Wettbewerb Wohngut Scheldehausen
  • 1. Preis Wettbewerb Wohngut Scheldehausen
  • 1. Preis Wettbewerb Wohngut Scheldehausen
  • 1. Preis Wettbewerb Wohngut Scheldehausen
  • Lageplan
  • Haus 1 - Service Wohnen
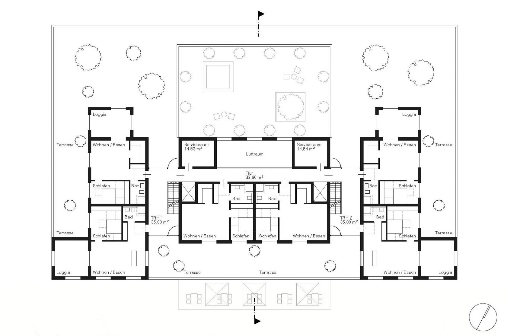
  • Haus 1 - Erdgeschoss
  • Haus 1 - Obergeschoss
  • Haus 1 - Ansicht Süd
  • Haus 1 - Ansicht West
  • Haus 1 - Ansicht Nord
  • Haus 1 - Ansicht Schnitt
  • Haus 2 - Service Wohnen
  • Haus 2 - Grundriss
  • Haus 2 - Ansicht Süd
  • Haus 2 - Ansicht West
  • Haus 2 - Schnitt
  • Haus 3 - Pflege Wohnen
  • Haus 3 - Erdgeschoss
  • Haus 3 - Ansicht West
  • Haus 3 - Schnitt